Geschäftszeiten: Mo.-Fr.: 9:00 – 18:00 Uhr / Sa. & So.: 10:00 – 16:00 Uhr

Doppelhaushälfte mit viel Platz, Garten & Ausbaupotenzial – ruhige Lage

86650 Wemding / Amerbach, Doppelhaushälfte zum Kauf

Virtueller Rundgang

Objektdaten

  • Objekt-ID
    2025-194
  • Objekttypen
    Doppelhaushälfte, Haus
  • Adresse
    86650 Wemding / Amerbach
  • Etagen im Haus
    4
  • Wohnfläche ca.
    158,35 m²
  • Nutzfläche ca.
    160,40 m²
  • Grund­stück ca.
    780 m²
  • Zimmer
    7
  • Schlafzimmer
    3
  • Badezimmer
    1
  • Separate WC
    2
  • Balkone
    2
  • Terrassen
    1
  • Heizungsart
    Ofenheizung, Etagenheizung
  • Wesentliche Energieträger
    Strom, Holz/Hackschnitzel
  • Baujahr
    1983
  • Zustand
    sanierungsbedürftig
  • Garagen­stellplätze
    2 Stellplätze
  • Verfügbar ab
    01.04.2026
  • Käufer­provision
    3,57 % inkl. MwSt.
  • Kaufpreis
    289.000 EUR

Ausstattung / Merkmale

  • ✓ Balkon
  • ✓ Kabel-/Sat-TV
  • ✓ Kamin
  • ✓ Keller
  • ✓ Separates WC
  • ✓ Terrasse

Energieausweis

  • Energieausweistyp
    Bedarfs­ausweis
  • Gültig bis
    01.09.2035
  • Gebäudeart
    Wohngebäude
  • Baujahr lt. Energieausweis
    1973
  • Primärenergieträger
    Holz/Hackschnitzel
  • Endenergie­bedarf
    213,00 kWh/(m²·a)
  • Energie­effizienz­klasse
    G
0 25 50 75 100 125 150 175 200 225 250+ H G F E D C B A A+ H G F E D C B A A+ Endenergiebedarf 213,00 kWh/(m²·a)

Objekt­beschreibung

Beschreibung

Diese solide Doppelhaushälfte in Amerbach, Baujahr 1983 (Rohbau 1973), ist voll unterkellert und bietet viel Platz auf mehreren Ebenen – mit einem grundsätzlich gut nutzbaren Grundriss und einem Dachgeschoss, das bereits für einen weiteren Ausbau vorbereitet ist. Die Wohnfläche beträgt ca. 158,4 m² (nach WoFlV), hinzu kommen ca. 160 m² Nutzfläche (Keller und Dachgeschoss) – insgesamt also rund 318 m² Fläche.

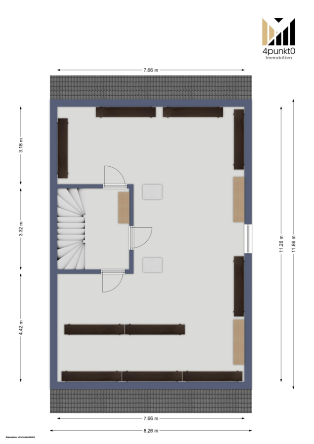
Im Erdgeschoss bildet die zentrale, großzügig geschnittene Diele mit Kachelofen den Mittelpunkt. Die Flure sind angenehm breit und vermitteln ein offenes Raumgefühl; die Raumhöhe liegt bei ca. 2,40 m. Von hier aus sind Wohnzimmer, Esszimmer, Küche sowie ein Gäste-WC direkt erreichbar. Das Wohnzimmer ist mit ca. 36 m² angenehm großzügig, ebenfalls mit Kachelofen und direktem Zugang zur Süd-/Südost-Terrasse.

Im Obergeschoss befinden sich drei Schlafzimmer sowie ein Badezimmer und ein separates WC. Ergänzt wird die Etage durch zwei überdachte Balkone: Einer ist von zwei Schlafzimmern aus begehbar, der zweite ist vom Flur aus zugänglich. Im Treppenhaus befindet sich außerdem ein Treppenlift.

Ein echtes Plus ist das Dachgeschoss: Es ist bereits für einen Ausbau vorbereitet (u. a. Estrich, Treppenhauswände bis ins DG geführt).

Der Keller präsentiert sich praktisch nutzbar: geflieste Böden, ein Waschbereich mit Zugang in den Garten sowie ein großer Raum, der sich z. B. ideal als Holzlager oder als Hobby-/Stauraum eignet.

Im Gutachten wird ein ehemaliger Wasserschaden erwähnt – laut Eigentümerin behoben; an der Stelle wurde keine erhöhte Feuchtigkeit gemessen.

Chance: Hier kann man mit überschaubarem Aufwand (Putz/Optik) aufarbeiten – und durch die Kellerraumhöhe von 2,30 m besteht zudem die Möglichkeit, eine Kellerdeckendämmung anzubringen, um Wärmeverluste aus dem EG zu verringern.

Der Gesamtzustand zeigt, dass über längere Zeit nur wenig investiert wurde. Es besteht ein Renovierungs- und Modernisierungsstau. Für Käufer bedeutet das: ein Objekt für Menschen, die bereit sind, Zeit und Budget in eine umfassende Renovierung.

Positiv / Chancen aus dem Gutachten:

  • Fassade: Es ist ein Wärmedämmverbundsystem aus dem Baujahr vorhanden; außen sichtbare Risse (Nord/Ost) werden im Gutachten nicht als konstruktionsbedingt eingestuft.
  • Innenputz Küche: Netzförmige Risse werden als Schwindrisse eingeordnet – nur optische Einschränkung, und lassen sich leicht begradigen/neugestalten.
  • Bad OG: Gerissene Bodenfliesen im Duschbereich; laut Gutachten spricht das Rissbild nicht für konstruktive Ursachen (mögliche Absenkung/Anschluss Estrich).

Zur Heizung: Im Gebäude sind Nachtspeicheröfen sowie eine Stückholzheizung mit Warmluftverteilung vorhanden. An den Luftauslässen sind Rußablagerungen erkennbar; laut Eigentümerin gibt es vom Kaminkehrer keine Beanstandungen an der Stückholzheizung. Chance: Das Gutachten weist darauf hin, dass das Heizsystem aus Sicht des GEG weiter betrieben werden darf, energetisch aber ein Austausch sinnvoll ist – und dass eine neue Heizung förderfähig sein kann. Die Dachfläche bietet gute Voraussetzungen für PV als Modernisierungschance.

Auch außen überzeugt das Grundstück: Doppelgarage + Stellplätze, ein komplett eingezäunter Garten mit viel Sonne und eigener Zufahrt – ideal für Familie, Hobby oder einfach mehr Freiraum.

Hinweis: Damit Sie ein Gefühl dafür bekommen, was hier möglich ist, haben wir einige Innen- und Außenbilder als Visualisierungen (digital bearbeitet) ergänzt.

Das Kurzgutachten ist im Exposé zu sehen.

Ausstattung

Wohnen & Raumaufteilung:

Großzügiges Wohnzimmer, Kachelöfen, direkter Zugang zur Terrasse

Separates Esszimmer, Treppenlift

Drei Schlafzimmer im Obergeschoss, davon zwei mit Südsüdost Balkonzugang

Funktionale Küche mit angrenzendem Abstellraum

Tageslichtbad im Obergeschoss

Gäste-WC im Erd- und Obergeschoss

Angenehm breite Flure / großzügige Diele

Außenbereiche:

Terrasse, Gartenflächen mit vielseitigen Nutzungsmöglichkeiten

Doppelgarage mit zusätzlichen Stellmöglichkeiten davor

Nutzflächen & Nebenräume: Voll nutzbarer Dachboden, vorbereitet zum Ausbau

Kellergeschoss mit:

Hauswirtschaftsraum, mehreren Abstellräumen, Flur- und Nebenflächen

Waschbereich mit Zugang in den Garten

Weitere Merkmale:

Klar strukturierte Grundrisse auf allen Ebenen

Gute Trennung von Wohn- und Schlafbereichen, Viel Stauraum im gesamten Haus

Raumhöhe ca. 2,40 m, Geschossdecken in Beton ausgeführt (kein Fehlboden)

Ruhige Wohnlage mit angenehmer Privatsphäre

Schnelles Internet verfügbar

Wasserhärte ca. 16 °dH (mittel bis hart)

Höhenlage ca. 430 m ü. NN

Heizung: Holz-/Kachelofen im Erdgeschoss, Nachtspeicheröfen (laut Eigentümer selten genutzt)

Warmluftkanäle zur Wärmeverteilung in die oberen Etagen

Wohnfläche ca. 158,4 m² (nach WoFlV, inkl. überdachter Balkone mit 25 % Anrechnung)

Zusätzliche Nutzfläche: ca. 75,8 m² im Kellergeschoss und ca. 84,6 m² im Dachgeschoss

Hinweis:
Die Angaben zu Wohn- und Nutzflächen beruhen auf vorliegenden Unterlagen und Berechnungen. Die Grundrisse dienen der Orientierung und sind nicht maßstabsgetreu.

Sonstiges

Sie möchten mehr erfahren?

Gern senden wir Ihnen das vollständige Exposé mit Grundrissen und Kurzgutachten zu.

Damit wir Ihre Anfrage schnell und zuverlässig bearbeiten können, benötigen wir vollständige Kontaktdaten (Name, Anschrift, Telefonnummer und E-Mail). Nur so können wir Ihnen zeitnah antworten und das Exposé zusenden.

So erhalten Sie das Exposé und einen Besichtigungstermin:

Senden Sie Ihre Kontaktanfrage über das Immobilienportal – das dauert nur eine Minute.

Nach Ihrer Anfrage erhalten Sie automatisch eine E-Mail mit dem Link zum Exposé.

Bestätigen Sie den Link und öffnen Sie das Exposé – kostenlos und mit allen wichtigen Informationen.

Wenn Sie eine Besichtigung wünschen, melden Sie sich anschließend bei uns – gern telefonisch, per WhatsApp oder per E-Mail.

Tipp: Gehen Sie das Exposé und den 3D-Rundgang vor der Besichtigung gründlich durch – so können wir Ihre Fragen vor Ort gezielt beantworten.

Alle Angaben basieren auf den Informationen unseres Auftraggebers. Für deren Vollständigkeit, Richtigkeit und Aktualität übernehmen wir keine Gewähr. Änderungen, Irrtümer sowie Zwischenverkauf oder anderweitige Verwertung bleiben vorbehalten.

4punkt0 Immobilien
Kaplan-Keller-Straße 7
86650 Wemding
Telefon: 09092 9678450
http://www.4punkt0.com

Lage

Amerbach ist ein ruhiger Ortsteil von Wemding im Landkreis Donau-Ries – ländlich geprägt, mit kurzen Wegen in die Stadt und in die Region. Wer hier wohnt, hat seine Ruhe, ist aber trotzdem schnell dort, wo man Alltag und Infrastruktur braucht.

Alltagswege & Versorgung

Die Wemdinger Innenstadt mit Einkaufsmöglichkeiten, Ärzten, Apotheken, Schulen und Gastronomie ist in wenigen Minuten erreichbar. Auch größere Versorgungszentren wie Nördlingen oder Donauwörth sind mit dem Auto gut erreichbar – ideal, wenn man beruflich pendelt oder ein breiteres Angebot nutzen möchte.

Verkehr & Anbindung

Amerbach liegt verkehrsgünstig im Donau-Ries: Über die Staats- und Bundesstraßen sind die umliegenden Orte schnell angebunden. Richtung Augsburg, Ingolstadt oder Nürnberg kommt man zügig weiter, ohne dass man hier direkt im Durchgangsverkehr sitzt.

Freizeit & Natur

Rund um Amerbach beginnt die Natur praktisch vor der Haustür. Die Region rund um Wemding ist bekannt für Spazier- und Radwege, Wald und offene Landschaften. Für Sport und Freizeit gibt es in Wemding und Umgebung einiges: Fußball, Tennis, Fitness, Reiten sowie ein reges Vereinsleben. Wer lieber ruhiger unterwegs ist, findet in der Umgebung gute Möglichkeiten zum Angeln, Wandern oder einfach für entspannte Touren ins Grüne.

Was die Lage ausmacht

Amerbach ist genau richtig für alle, die ländlich wohnen möchten, aber nicht abgeschieden. Man bekommt hier Platz, Ruhe und eine gute Anbindung – und hat Wemding als Stadt mit allem Wichtigen in Reichweite.

Kindergarten 3 km | Grundschule 3 km | Hauptschule 3 km | Realschule 3 km | Gymnasium 11 km | Fernbahnhof 9,08 km | Zentrum 3 km | Bus 100 m | Gaststätten 1,50 km 

Die dargestellte Position der Immobilie ist nur eine ungefähre Angabe.

Direktanfrage

* Pflichtangaben
 SSL-verschlüsselt
Immobiliendaten-Import und Darstellung für WordPress: WP-ImmoMakler